G-Belt Mounting Dimensions
G-Belt Drill Template
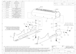
G-Belt Universal Seat Mount Installation
Stage Series G-Belt Mount Installation
Loading...